Rif: IMMO-125744107
ROMA
ROMA - zona Largo Argentina
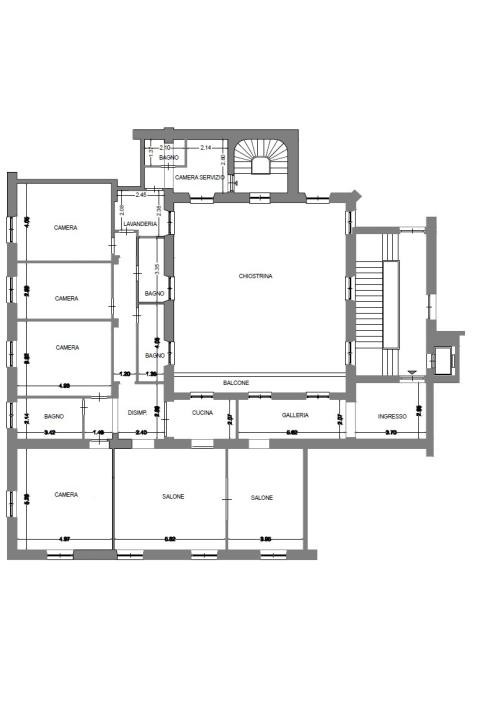
Al terzo piano con ascensore e servizio di portineria di uno splendido palazzo patrizio con posto auto proponiamo un luminoso appartamento che misura circa 250 metri quadrati ed è composto da un grande ingresso con accesso al balcone, un salone doppio con affacci sul Campidoglio, una sala da pranzo (eventuale quarta camera da letto padronale), una cucina anch'essa con accesso al balcone, tre camere da letto padronali, tre bagni, camera e bagno di servizio. Possibilità di parcheggio all'interno del cortile del palazzo. Preferenza per contratti con cedolare secca. Disponibile da subito. NO ATTIVITà RICETTIVE.
Consistenze
| Descrizione | Superficie | Sup. comm. |
|---|---|---|
| Principali | ||
| Immobile - 3° piano | 250 Mq | 250 Mqc |
| Balcone - 3° piano | 8 Mq | 2 Mqc |
| Totale | 252 Mqc | |
