Rif: IMMO-125871613
ROMA
ROMA - zona Colosseo - Fori Imperiali
A due passi da Piazza Venezia, in un contesto tranquillo e confortevole, proponiamo un attico e superattico di circa 300 metri quadrati oltre a circa 300 mq di terrazzi.
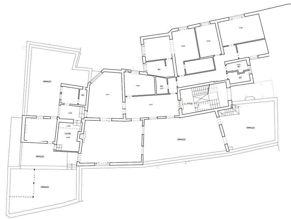
L'immobile è composto da un appartamento al 4 piano con grande ingresso, soggiorno, sala da pranzo, tre terrazze a livello, quattro camere da letto, quattro bagni, una cucina, un guardaroba. Al piano superiore si trovano un altro appartamentino indipendente di circa 20 metri quadrati, una comoda soffitta/palestra, un terrazzo panoramico di circa 120 metri quadrati volendo direttamente collegato al terrazzo del 4 piano. Viste panoramiche. Disponibile anche per contratti con società. NO ATTIVITà RICETTIVE DI ALCUN GENERE.
L'immobile è composto da un appartamento al 4 piano con grande ingresso, soggiorno, sala da pranzo, tre terrazze a livello, quattro camere da letto, quattro bagni, una cucina, un guardaroba. Al piano superiore si trovano un altro appartamentino indipendente di circa 20 metri quadrati, una comoda soffitta/palestra, un terrazzo panoramico di circa 120 metri quadrati volendo direttamente collegato al terrazzo del 4 piano. Viste panoramiche. Disponibile anche per contratti con società. NO ATTIVITà RICETTIVE DI ALCUN GENERE.
Consistenze
| Descrizione | Superficie | Sup. comm. |
|---|---|---|
| Principali | ||
| Immobile - 4° piano | 281 Mq | 281 Mqc |
| Terrazza - 4° piano | 229 Mq | 69 Mqc |
| Immobile - 5° piano | 19 Mq | 19 Mqc |
| Soffitta - 5° piano | 13 Mq | 6 Mqc |
| Terrazza - 5° piano | 119 Mq | 36 Mqc |
| Totale | 411 Mqc | |
